En plus de concevoir des plans sur mesure, nous disposons aujourd’hui d’un catalogue de plus de 200 plans de maisons entièrement personnalisables.
Voici un aperçu de quelques réalisations supervisées, accompagnées de leur coût moyen*, afin de vous donner une idée des tarifs compétitifs et transparents que nous pouvons vous proposer avec nos partenaires.
Les prix indiqués ci-dessous comprennent la construction, avec des tarifs négociés auprès de nos artisans et fournisseurs partenaires (hors terrain et étude de sol). Ils incluent l’ensemble des prestations, depuis la conception des plans et l’obtention du permis de construire jusqu’à la réception, ainsi que les honoraires du maître d’œuvre.
En option, nos artisans peuvent également intégrer :
– Les sanitaires
– Les peintures intérieures
– Les travaux d’assainissement (si pas de tout à l'égout)
– Les aménagements extérieurs (enlèvement du surplus de terre, clôtures, portail, engazonnement, pavés, bitume etc.).
Ces tarifs incluent la réalisation de l’étude thermique, l'attestation de conformité du consuel électrique ainsi que le diagnostic de performance énergétique (DPE).
⚖️ Conformément à la réglementation en vigueur, au-delà de 150 m² de surface de plancher (hors garage), l’intervention d’un architecte est obligatoire pour l’élaboration des plans et dépôt du permis, ce qui peut entraîner un coût supplémentaire. Nous faisons appel a notre architecte partenaire dans ces situations.
*Les tarifs affichés sont a titre indicatif . L'assurance dommage ouvrage n'est pas comprise, elle doit être souscrite par le client ( entre 2500€ et 4500€ via nos partenaires )
Avec KonaK, vous avez également la possibilité de construire votre maison étape par étape, en fonction de votre budget, ou même d’opter uniquement pour la partie hors d’eau / hors d’air ( HEHA )
Plain-pied 66m² - 2 chambres
Chauffage split (pompe a chaleur) + radiateurs dans les chambres
Sans sanitaires (en option)
Carrelage inclus ( sauf chambres )
A partir de 89 990€ *
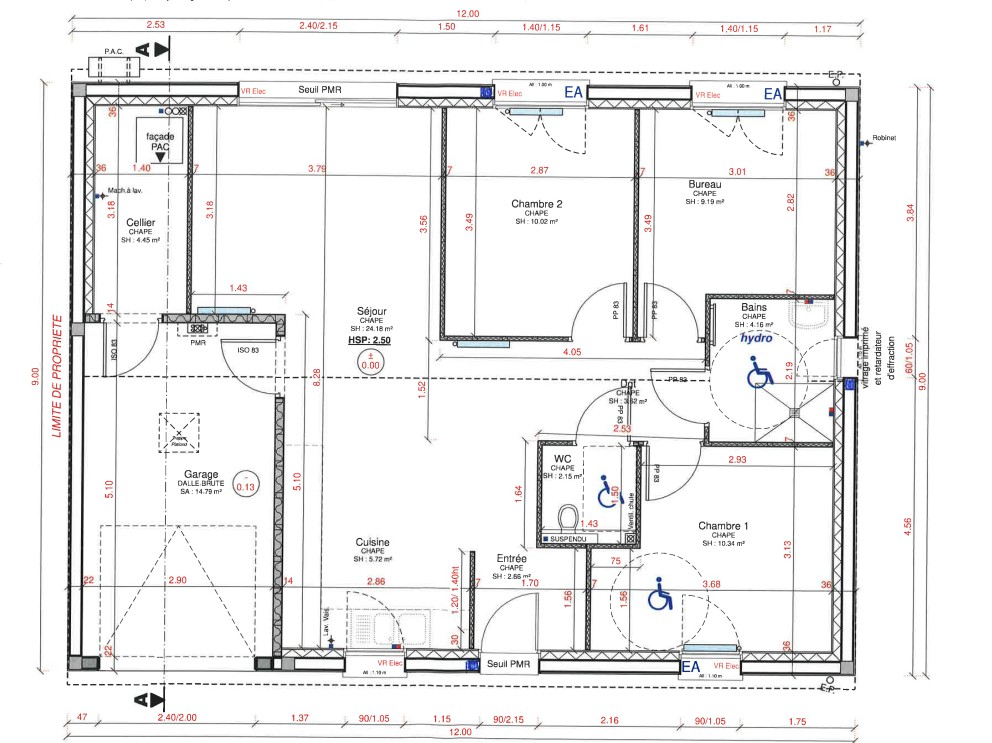
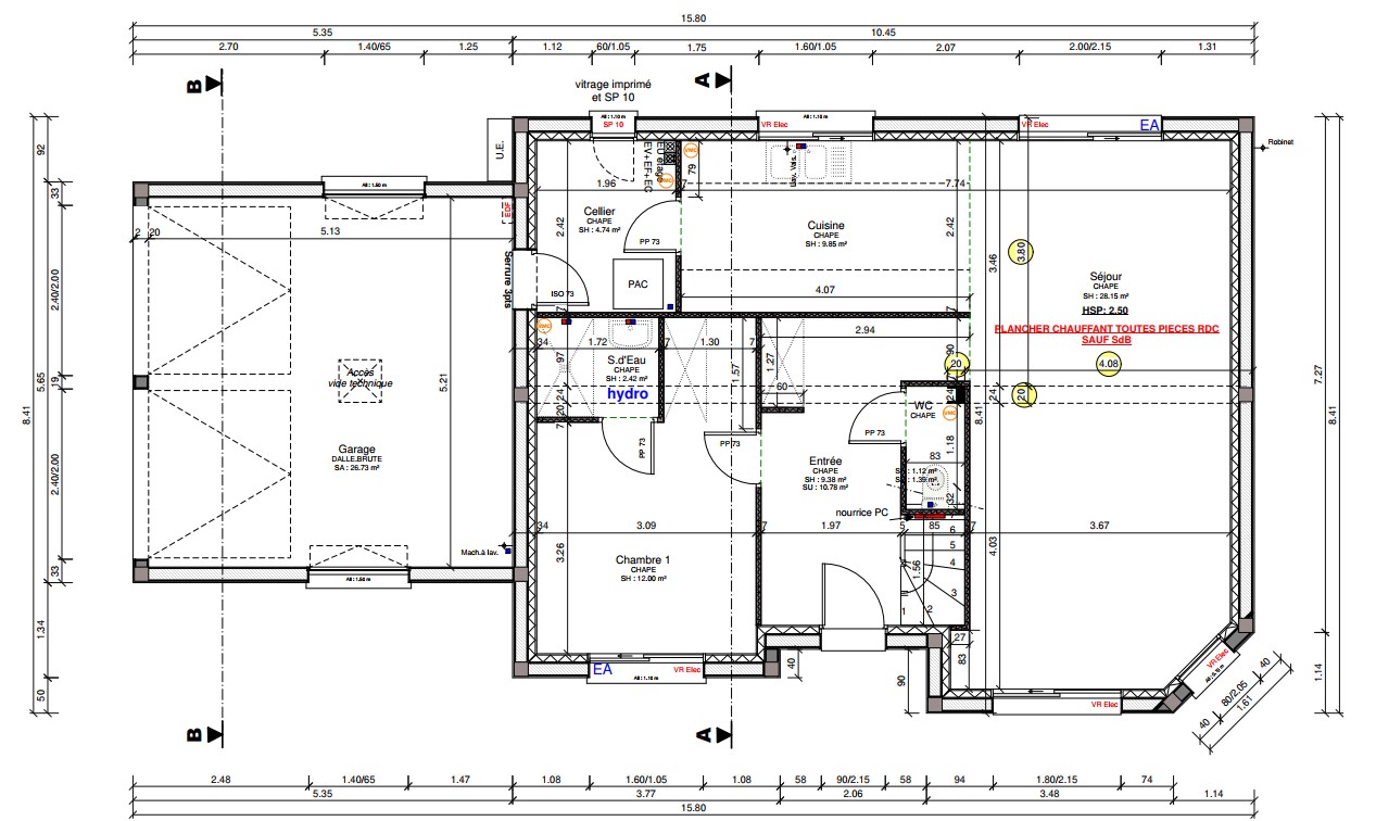
Plain-pied PMR 76m² - 3 chambres + garage 15m²
Chauffage radiateurs (pompe a chaleur)
Sans sanitaires (en option)
Volets roulants electriques
Carrelage inclus ( sauf chambres )
A partir de 101 990€ *
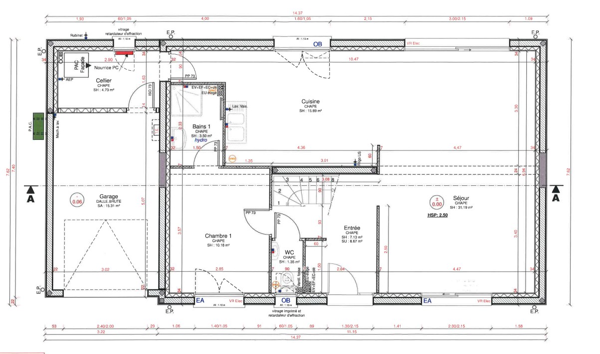
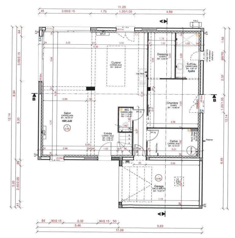
Plain-pied en V 103m² - 3 chambres dont 1 chambre parentale + garage 15m²
Chauffage au sol (pompe a chaleur)
Sans sanitaires (en options)
Volets roulants électriques sans fil
Carrelage inclus ( sauf chambres )
A partir de 142 990€ *
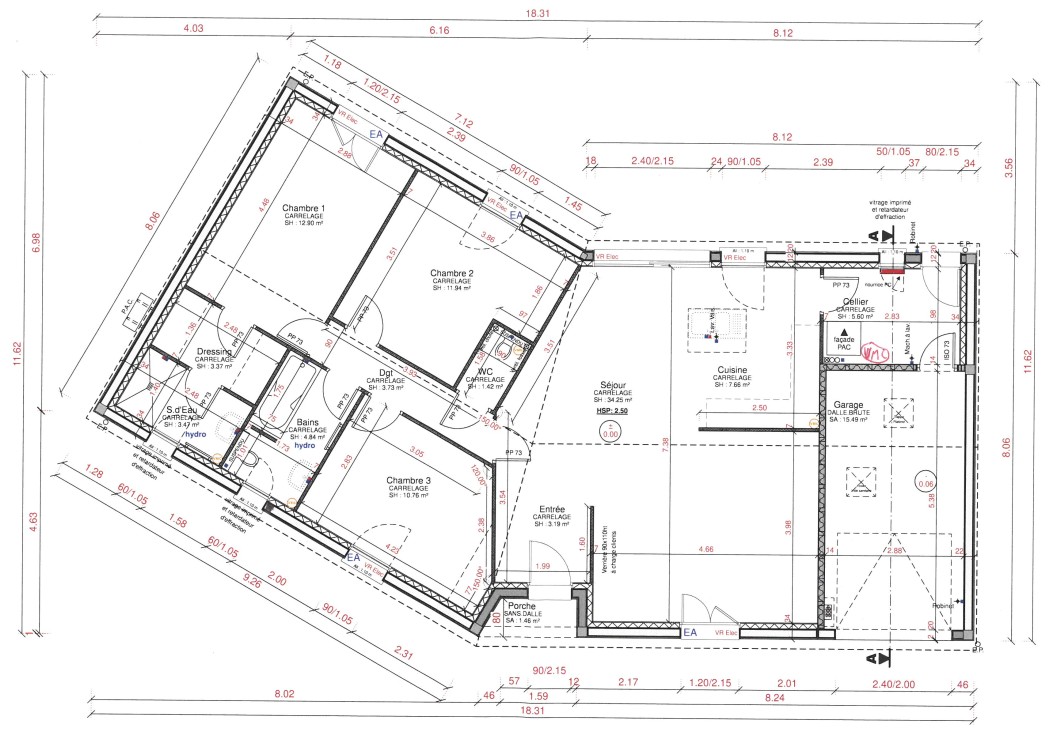
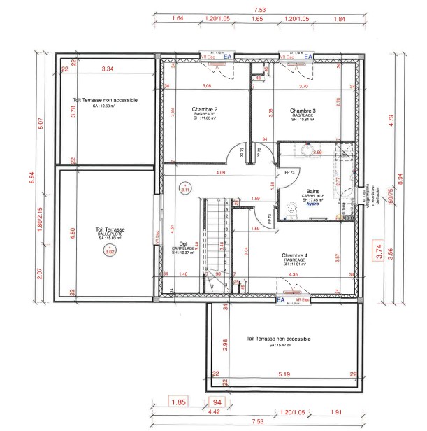
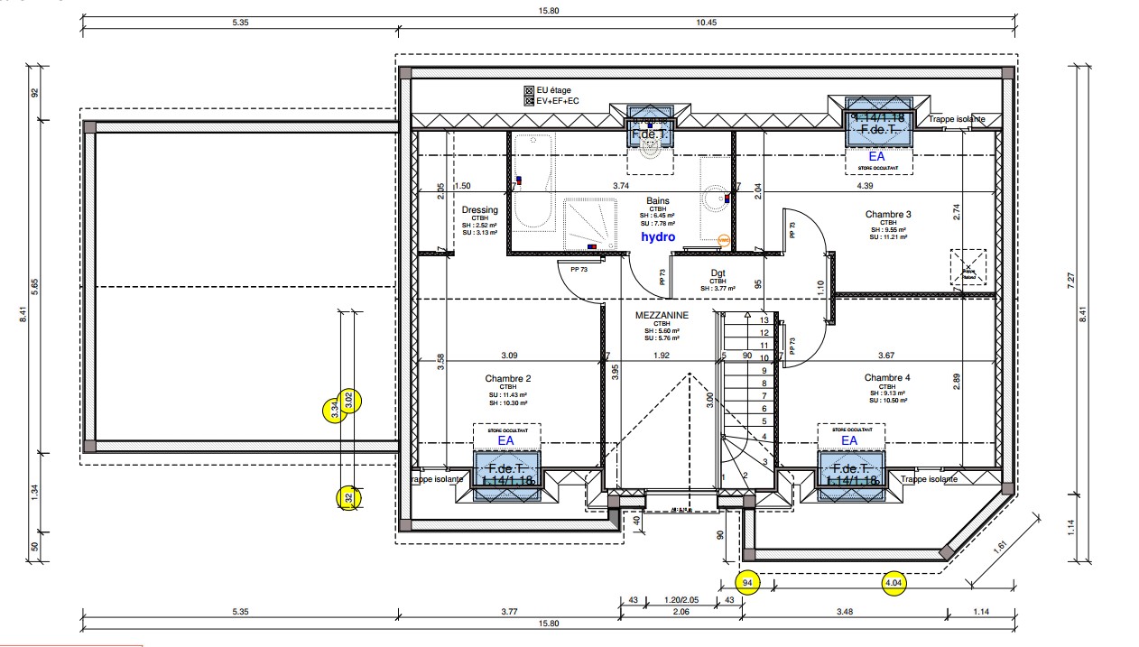
R+COMBLES 117m² - 4 chambres dont 1 parentale + double garage 27m²
Chauffage au sol (pompe a chaleur) + radiateurs a l'étage
Sans sanitaires ( en options)
Volets roulants électriques sans fil
Carrelage inclus ( sauf chambres )
A partir de 159 990€ *
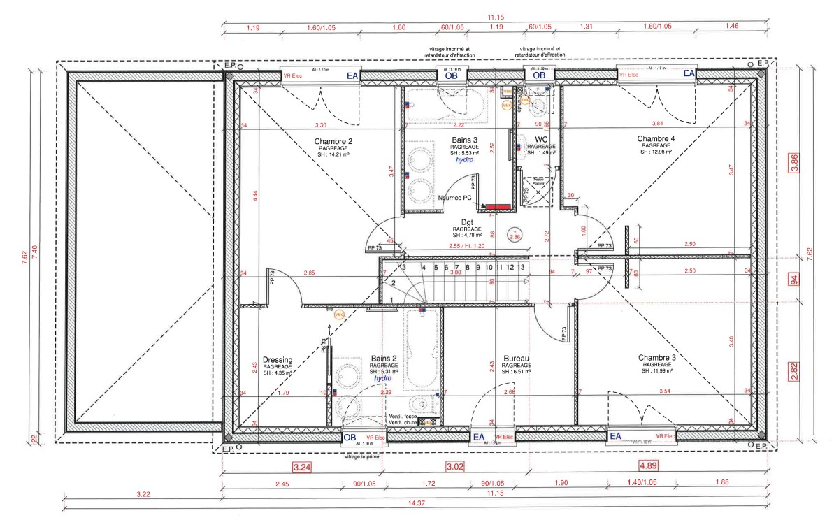
R+1 141m² - 4 chambres dont 1 parentale + bureau+ garage 15m²
Chauffage au sol rdc+etage (pompe a chaleur)
Sans sanitaires (en option)
Volets roulants électriques sans fil
Carrelage inclus ( sauf chambres )
A partir de 179 990€ *
R+1 Toit plat
134m² - 4 chambres dont 1 parentale + Terrasse en dalle sur plot + garage 15m²
Chauffage split reversible ( pompe a chaleur ) + Radiateurs a l'étage
Sans sanitaires (en option)
Volets roulants électriques sans fil
Carrelage inclus ( sauf chambres )
A partir de 182 490€ *








































